Sign up to get new listings emailed daily! SIGN UP LOGIN
Refine Search

7369 Royal Palm Drive, New Port Richey, FL 34652

$125,000
  • 7369 Royal Palm Drive, New Port Richey, FL 34652 Main Photo

56 Total Photos [Click to View All]

Active
BEDS2 BATHS1 full SQUARE FEET948 MLS#TB8425155
STATUSActive PROPERTY TYPEResidential - Single Family SUBDIVISIONJASMIN ACRES

Property Description

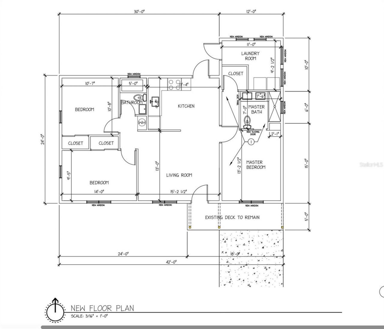
Have an ideal vision of the finishing touches and how you want a new 3-bedroom, 2-bath home or investment property to appear in front of your eyes, not just in your mind? Allow this floor plan to bring your vision to life. The floor plan is split. Enabling privacy in the primary bedroom, the en suite bathroom, and the walk-in closet updates the home's potential. The new owner will have the opportunity after closing to put their vision into place with new cabinetry, fixtures, appliances, and furnishings, making it their own.The more expensive items in the home are installed, and it's ready to be renovated. The roof was replaced in 2018. Mini-split AC units in every bedroom and the main living area. All but 2 windows are new double-paned, current hurricane-rated windows. New hurricane-rated exterior backdoor. The home has been rewired with all new electrical. The master bath and walk-in closet are framed and in place, ready for moisture-resistant drywall. Some of the plumbing is new. The permit and current floor plan were previously approved by the City of New Port Richey and will need to be reapproved by the new owner.Conveniently located close to beach activities, Green Key Beach is less than 5 miles away. The quaint downtown of New Port Richey has yummy restaurants, specializing in everything from breakfast to dinner. Shopping, including Wright's, a local grocery market, and Gulf Coast Networking, a locally-owned computer repair shop, among many others. Sims Park along the Cotee River has plenty of shaded space, a playground, outdoor workout equipment (you may have to share with the park's wildlife, they like the steps), a splash pad, and an amphitheater, perfect for free movie nights and concerts in the park, less than 5 miles away. Downtown New Port Richey is a vibrant part of the community.The flooding damage sustained from Helene has already been removed.

7369 Royal Palm Drive | MLS# TB8425155

This single family home located at 7369 Royal Palm Drive, New Port Richey, FL 34652 is currently listed for sale with an asking price of $125,000. This property was built in 1958 and has 2 bedrooms and 1 full baths with 948 sq. ft. Royal Palm Drive is located in the JASMIN ACRES subdivision. Search JASMIN ACRES real estate on www.adamscameroncommercial.com today.

Property Features

Property Type: Residential - Single Family
Cooling: Ductless
Heating: Electric
Lot Size: 0.12 Acres
Roof Type: Shingle
Stories: 1.0
Taxes: $3,283
Year Built: 1958

Amenities

Primary Bedroom Main Floor
Walk-In Closet(s)
Private Mailbox

Feature Descriptions

Appliances: None
Days on Site: 178
Directions: Hwy 19 to west on Avery Rd (just south of the bridge for the Pithlachascotee River and north of Main St New Port Richey), right onto Royal Palm Dr. Home will be on the right.
Exterior: Block, Stucco
Flood Zone Code: AE
Flooring: Concrete, Recycled/Composite Flooring, Terrazzo
Foundation: Slab
Home Warranty Y/N: No
Listing Terms: Cash
Lot Dimensions: 0.12
Ownership: Fee Simple
Property Attached Y/N: No
Property Sub-Type: Single Family Residence
Sewer: Public Sewer
Showing Instructions: Supra Lock Box, ShowingTime
Special Sale Provisions: None
Utilities: Cable Available, Electricity Available, Sewer Connected, Water Available
Water: Public
Water Access Y/N: No
Zoning: R3

Room Sizes

Living Room: 12x14
Kitchen: 9x12
Primary Bedroom: 11x13
Bedroom 2: 9x13
Bedroom 3: 10x10

Listed By / Shown By

Listed By

Agency Name: KELLER WILLIAMS SOUTH TAMPA
Agency Contact: 813-875-3700

Shown By

Agency Title: Adams Cameron & Co. REALTORS - Commercial
Agency Phone: (386) 252-3120

IDX logo

Estimate Your Payment

Estimated Payment

$ 975.34 per month $665.30 Principal & Interest $273.58 Property Tax $36.46 Homeowner's Insurance

Change Payment Information

%
years/fixed
yearly
yearly (est.)
(Payments are an estimate and may vary by lender)

Rose Pinto and Dawson Walker can help you get pre-approved quickly and easily in order to get the home buying process started.

Login to My Property Finder

Pixel