Sign up to get new listings emailed daily! SIGN UP LOGIN
Refine Search

110 Basin Drive, Palatka, FL 32177

$400,000
  • 110 Basin Drive, Palatka, FL 32177 Main Photo

4 Total Photos [Click to View All]

Active
BEDS3 BATHS2 full SQUARE FEET1,800 MLS#2131281
STATUSActive PROPERTY TYPEResidential - Single Family SUBDIVISIONSt Johns Harbor

Property Description

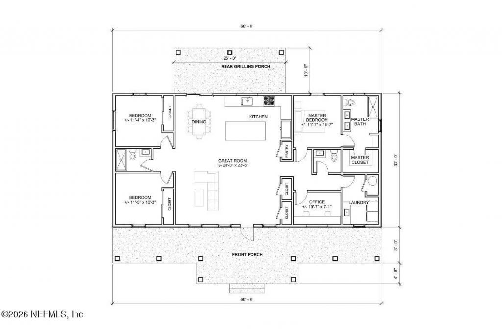
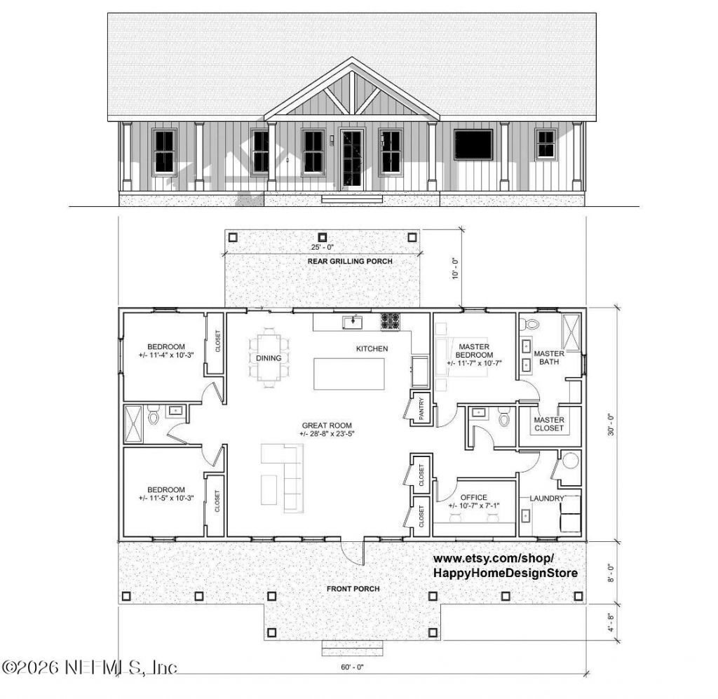
Build your dream home on this exceptional canal-front lot offering the perfect blend of waterfront living and custom design opportunity. This prime homesite includes a proposed 1,800 sq. ft. custom residence thoughtfully designed to maximize views and embrace the waterfront lifestyle. Enjoy direct canal access ideal for boating, kayaking, paddleboarding, or simply relaxing by the water's edge. The planned home features an open-concept layout, spacious primary suite, modern kitchen, and expansive windows to capture natural light and serene canal views. Outdoor living can be customized to include a covered lanai, patio, or even a private dock, creating the ultimate setting for entertaining or quiet evenings by the water. Located in a desirable area with convenient access to shopping, dining, and everyday amenities, this is a rare opportunity to secure new construction on a canal-front lot.

110 Basin Drive | MLS# 2131281

This single family home located at 110 Basin Drive, Palatka, FL 32177 is currently listed for sale with an asking price of $400,000. This property was built in 2026 and has 3 bedrooms and 2 full baths with 1800 sq. ft. Basin Drive is located in the St Johns Harbor subdivision. Search St Johns Harbor real estate on www.adamscameroncommercial.com today.

Property Features

Property Type: Residential - Single Family
Cooling: Other
Home Style: Contemporary
Lot Size: 0.24 Acres
Taxes: $373
Year Built: 2026

Listed By / Shown By

Listed By

Agency Name: DUCK REALTY INC

Shown By

Agency Title: Adams Cameron & Co. REALTORS - Commercial
Agency Phone: (386) 252-3120

IDX logo

Estimate Your Payment

Estimated Payment

$ 2,276.72 per month $2,128.97 Principal & Interest $31.08 Property Tax $116.67 Homeowner's Insurance

Change Payment Information

%
years/fixed
yearly
yearly (est.)
(Payments are an estimate and may vary by lender)

Rose Pinto and Dawson Walker can help you get pre-approved quickly and easily in order to get the home buying process started.

Login to My Property Finder

Pixel